Ukryj asortyment Asortyment
Okucia i materiały dodatkowe Prowadnice meblowe Kulkowe Bez tłumienia HETTICH 77801 KA 3434/350 do klawiatury 20 kg

HETTICH 77801 KA 3434/350 do klawiatury 20 kg

Kod asortymentu 106695
W magazynie
Więcej informacji
Cenę produktu możesz sprawdzić po zalogowaniu się do portalu Démos24Plus.
Kup online
Marka
Hettich
Kod grupy
10200301
Jednostka (JM)
kpl
Minimalna ilość
1 kpl
Opakowanie
1 kpl
Opis i parametry

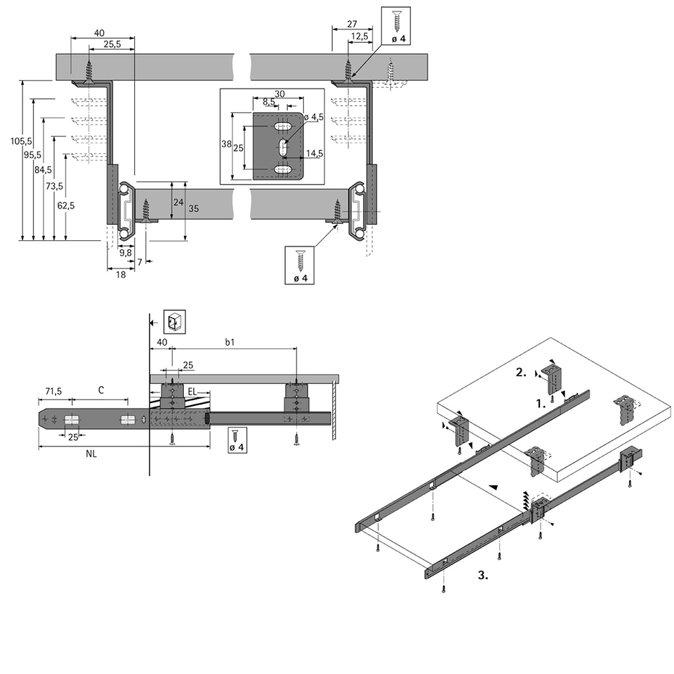
Prowadnica kulkowa częściowego wysuwu pod klawiaturę, obciążenie 20 kg, z zabezpieczeniem przed wypadnięciem. Zmienna wysokość montażowa od 62,5 do 105,5 mm w 5 pozycjach. Stal ocynkowana.

Parametry

Parametr Wartość
Długość (mm) 365
Nośność (kg) 20
Rodzaj prowadnicy Pełny wysuw
Ruch prowadnicy Bez tłumienia

Ostatnio odwiedzone